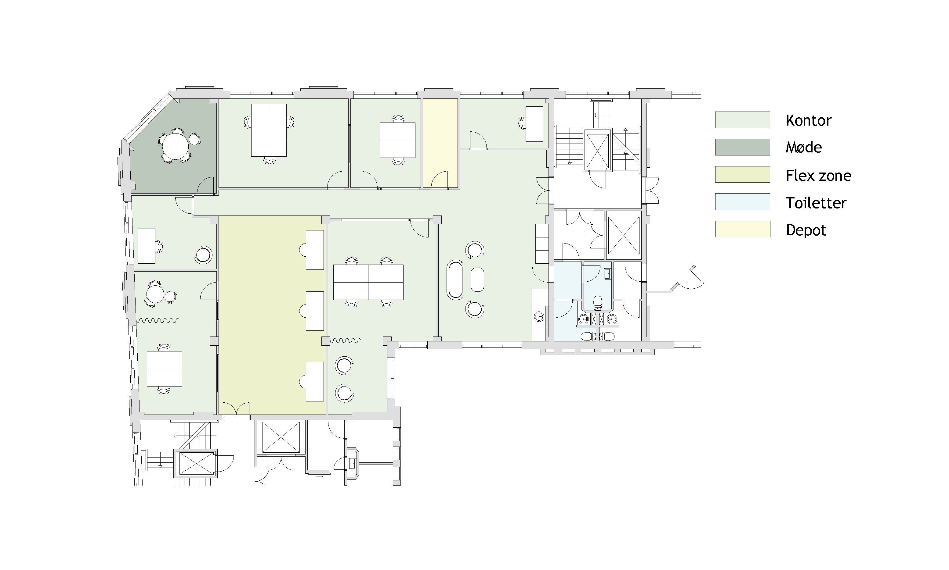
Type Kontor
Basisleje 1.950 kr./m²/år
Areal 320 m²
Energimærke C
Arbejdspladser 30
1122 København K

Sjæleboderne 2, 2. th.

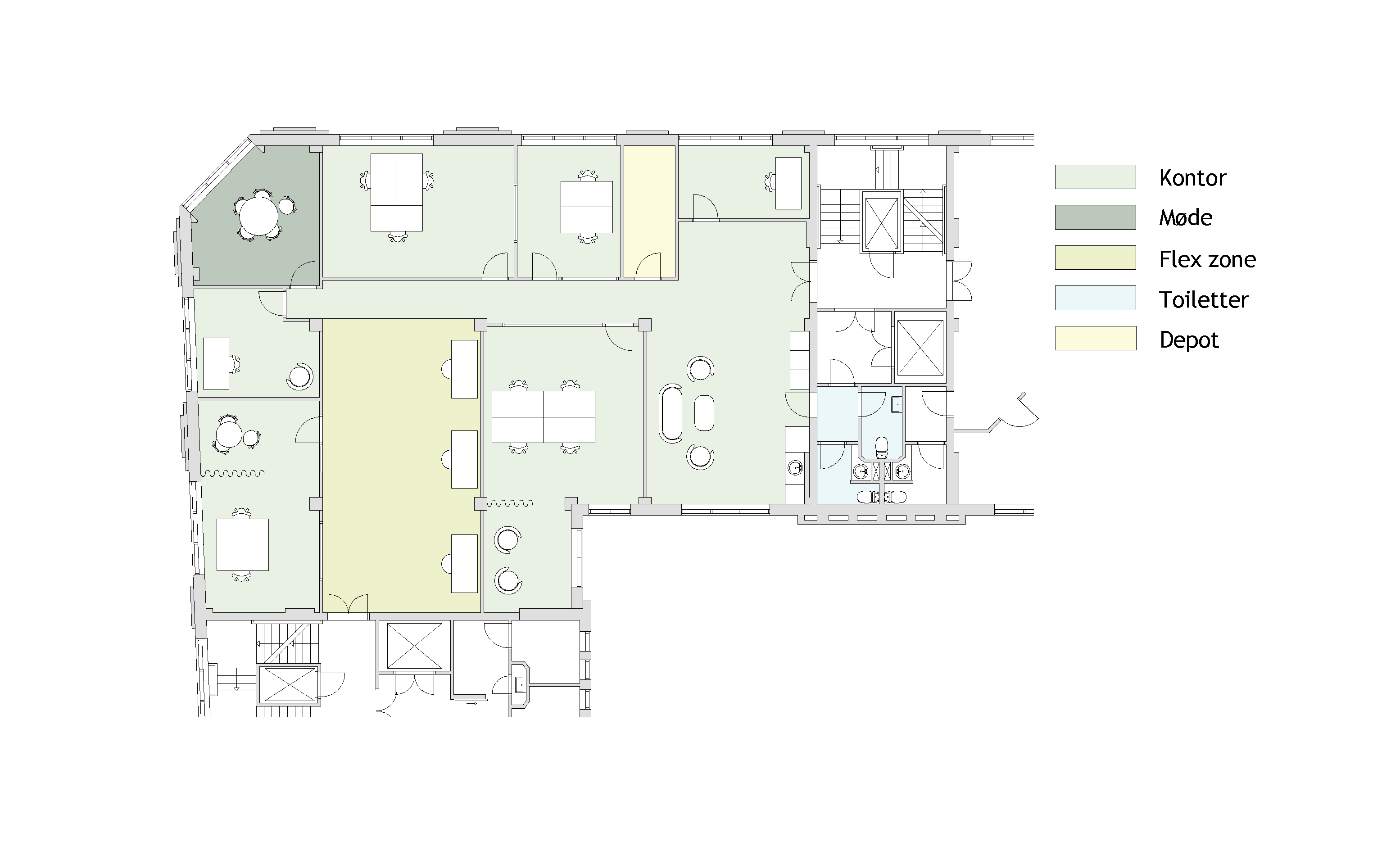
Type Kontor
Basisleje 1.950 kr./m²/år
Areal 320 m²
Energimærke C
Arbejdspladser 30
Bestil fremvisning Plantegning Vis på kort Hent prospekt
Møntergården i Gothersgade 49 i København K set oppefra
Kongens Have ved Møntergården i Gothersgade 49 i København K

Sjæleboderne 2, 2.th., 1122 København K

Skønt lejemål med fantastisk beliggenhed

Den statelige ejendom Møntergården fra 1916 er placeret i et levende og kvalitetsbevidst kvarter, præget af en skøn blanding af kontorer, butikker, spisesteder og kulturtilbud.

Beliggenheden midt i byen er let at komme til, uanset om du er til fods, på cykel eller med offentlig transport. Desuden ligger Kongens Have, et af byens fineste grønne åndehuller, lige for enden af gaden.

Hent prospekt
  • Ejendommen

    Klassisk elegance vis-a-vis Kongens Have.

  • Trappen

    Stilen fortsætter indenfor.

  • Lyset

    Store palævinduer skaber et fantastisk lysindfald.

Fakta

Basisleje - Kontor

1.950 kr./m²/år

Aconto drift inkl. skatter og afgifter

488 kr./m²/år

Aconto vand og varme

179 kr./m²/år

Areal

320 m2

Anvendelse

Kontor

Overtagelse

Efter aftale

Stand

Efter aftale

Depositum kontant

6 måneders leje

Opsigelsesvarsel

6 måneder

Uopsigelighed for lejer

Efter nærmere aftale

Uopsigelighed for udlejer

Efter nærmere aftale

Årlig regulering af lejen

NPI, dog min. 2 pct.

Energimærke

C

Momspligtig

Ja

Mulige tilkøb

Parkering: 3.500 kr. ekskl. moms/md.

Faciliteter

Mødelokale

Elevator

Tekøkken

Kantine

Toilet

Cykelparkering

Nærmeste offentlige transportmuligheder

450m til den nærmeste bus

Indiakaj

1.500m til den nærmeste metro

Metrostop M3/M4: Østerport

1.500m til den nærmeste togstation

Østerport

1.500m til den nærmeste s-togstation

Østerport

Jeg kan hjælpe dig

Har du spørgsmål til lejemålet eller ønsker en fremvisning, er du velkommen til at kontakte mig.

Vil du hellere ringes op?

Ring mig op

Simone Dahl

Asset Manager,
Asset Management

Telefon +45 24 40 45 11 E-mail