Type Kontor
Basisleje 1.850 kr./m²/år
Areal 784 m²
Energimærke B
Arbejdspladser 50
1602 København V

Nyropsgade 37, 5. sal

Type Kontor
Basisleje 1.850 kr./m²/år
Areal 784 m²
Energimærke B
Arbejdspladser 50
Bestil fremvisning Plantegning Vis på kort Hent prospekt

Nyropsgade 37, 5. sal, 1602 København V

Nyrenoveret kontor i multibrugerhus med mødecenter og kantine

Lys, luft og rå detaljer midt i København

N37 er opført i et stilrent udtryk, og det rå, funktionelle og industrielle går igen i kontorhusets indre. Her er det de solide materialer, der taler deres tydelige sprog, og detaljer i sandsten, støbejern, træ og mursten, der dominerer. Ejendommen, som har opnået en DGNB guld-certificering, er i 2022 blevet renoveret i tæt dialog med Vilhelm Lauritzen Architects. Resultatet er et moderne kontorhus med lyse og åbne kontormiljøer, optimalt indeklima samt fælles mødecenter og kantine i arkitektonisk særklasse.

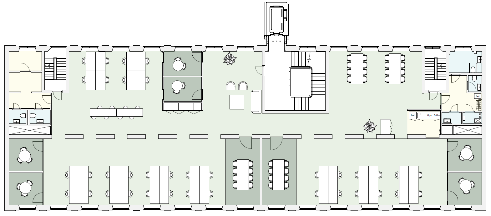
Det ledige lejemål har en gennemgående, bærende væg med blotlagt murværk. Det skaber luftige og gennemlyste lokaler og giver stor fleksibilitet i indretningen med mulighed for både storrumsmiljøer eller mindre kontorer og mødelokaler. Et eksklusivt tekøkken og tilhørende loungeområde fungerer som kontorets naturlige samlingssted og giver plads til uformelle møder.

Hent prospekt
  • Ejendommen

    Et flot indgangsparti

  • Trappen

    Trappeforløb med elevator

  • Kontormiljø

    Kontoret er indrettet som storrumskontor med mødelokaler i varierende størrelser

  • Kantine

    Adgang til fælles kantine

Fakta

Basisleje - Kontor

1.850 kr. /m² /år

Aconto drift inkl. skatter og afgifter pr. m2 pr. år

500 kr. /m² /år

Aconto vand og varme pr. m2 pr. år

146 kr. /m² /år

Aconto lejerforening pr. m2 pr. år

130 kr. /m² /år

Areal

784 m2

Anvendelse

Kontor

Overtagelse

Efter aftale

Stand

Nyistandsat med eksisterende indretning

Depositum kontant

6 måneders leje

Opsigelsesvarsel

6 måneder

Uopsigelighed for lejer

Efter nærmere aftale

Uopsigelighed for udlejer

Efter nærmere aftale

Årlig regulering af lejen

NPI, dog min. 2 pct.

Energimærke

B

Momspligtig

Ja

Faciliteter

Toilet

Mødelokale

Cykelparkering

Elevator

Gårdhave

Parkeringskælder

Kantine

Bad og omklædning

Nærmeste offentlige transportmuligheder

450m til den nærmeste bus

Indiakaj

1.500m til den nærmeste metro

Metrostop M3/M4: Østerport

1.500m til den nærmeste togstation

Østerport

1.500m til den nærmeste s-togstation

Østerport

Jeg kan hjælpe dig

Har du spørgsmål til lejemålet eller ønsker en fremvisning, er du velkommen til at kontakte mig.

Vil du hellere ringes op?

Ring mig op

Sarah Margareta Lehnshøj

Asset Manager,
Asset Management

Telefon +45 28 88 17 37 E-mail